手機 :15318932736
郵箱:aqboyangjx@126.com 2254886259@qq.com
地址:山東省濰坊市安丘市錦湖北路155號

添加微信,立即溝通

掃一掃,抖音(yīn)欣賞


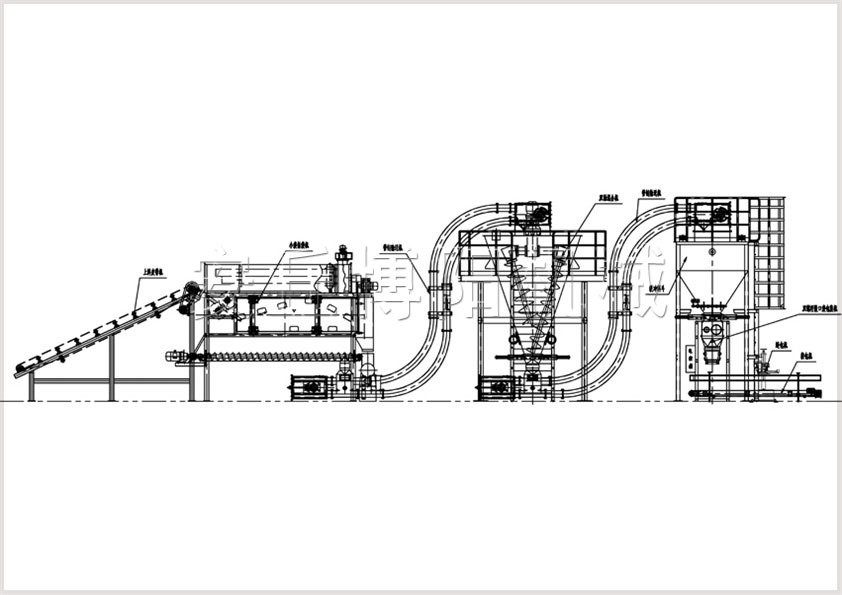
一、管鏈輸送機簡介
管鏈輸送機也被稱(chēng)作管鏈式輸送(sòng)機、管式輸送機、管道輸送機、鏈(liàn)管輸(shū)送機等。是在密閉的管(guǎn)子內部進行運動的一個機械係統,在輸送係(xì)統中具有性能穩定、節省能耗、環保、密封的特點。可(kě)以連續輸送粉狀、膏狀、小顆粒狀及小塊狀(zhuàng)等散狀(zhuàng)物料(liào),也可以水平、傾斜和垂直組合輸送。其廣(guǎng)泛(fàn)應用於化工、化纖、農(nóng)藥礦石、塑料、橡膠、糧食、煤粉、食品行業、建築材料等各行業。
二(èr)、管鏈(liàn)輸送機適用於行業及部分物料的輸送
| 農藥礦石 Pesticides & ORE | ||||
| 矽(guī)粉 Urea | 石油焦 Phosphate rock | 草甘膦 Molybdenum oxide | 氯化銨 Tungsten powder | 氧化鋁粉 Molybdenum(LV)sulfide |
| 尿素(sù) Carbamide | 玻璃(lí)粉 Glass powder | 氧化鉬 Alumina powder | 磷礦粉 Ammonium chloride | 二(èr)硫化鉬 Ammonium bicarbonate |
| 鎢粉 Silica fume | 氧化鉬 PET molybdena | 鈦精礦 Molybdenum oxide | 碳酸氫銨 Titanium concentrates | 銅精礦粉 copper concentrate powder |
| 化工行業Chemical lndustry | ||||
| 鈾 PP | 炭黑 Sulfur | 鈦白粉 Bentonite | 氟(fú)化鉀 Fiberglass | 氫氧化鋁(lǚ) Lithum carbonate |
| 片堿 PE | 硫磺 Coke | 氟化鈉 Uranium | 褐煤粉 Carbon black | 聚氯乙烯 Sodium fluride |
| 炭渣 PTA | 草酸 Kaolin | 碳酸鋰 Uranium | 聚乙(yǐ)烯 Caprolactam | 己內酰胺 Barium hydroxide |
| 塗料 BPT | 染(rǎn)料 Zeolite | 分子篩(shāi) Ferric oxide | 矽膠粉 Heavy calcium | 氫氧化鋇 Potassium fluride |
| 焦炭 POM | 雙酚A Breeze | 膨(péng)潤土(tǔ) Caustic soda | 氧化鐵(tiě) Light calcium | 聚丙烯共聚物 Calcium carbonate |
| 顏料 ABS | 鈦色素 Paints | 活性炭 Lan carbon | 氯(lǜ)化(huà)鈉 Sodium chloride | 精對苯二甲(jiǎ)酸 Aluminium hydroxide |
| 輕鈣 PVC | 高嶺土(tǔ) Coating | 碳酸(suān)鈣 Oxalic acid | 蘭碳粉 Lignit powder | 丙烯晴-丁二 烯-苯乙烯 Activated carbonate |
| 重(chóng)鈣 Dyes | 聚甲醛 Titanium | 己二酸 Adipic acid | 玻璃纖維 Titanium pigment | |
| 食品行業 Food lndustry | ||
| 澱粉 Sugar | 奶粉 Cereals | 中草藥渣 Food Additives |
| 白糖 Starch | 穀物 Milk powder | 食品添加劑 Chinese herbal medicine residue |
| 建築(zhù)材料 Building Material | |||
| 矽石 Silica | 陶(táo)土 Glass fiber | 木屑粉 Clay powder | 白雲石粉 Talcum powder |
| 水泥 Cement | 粘土粉 Quartz sand | 陶石英砂 Pottery clay | 石灰石粉 Limestone powder |
| 黃沙 Dolomite | 滑石粉 Yellow sand | 玻璃纖維 Wood powder | 二氧化矽 |
| 其他行(háng)業 Other Industries | |
| 多(duō)晶矽 | Polysilicon |
三、管鏈輸(shū)送機技術參數
| 型號(hào)Model | 輸送能力(lì)(m³/h) conveying capacity | 鏈輪轉速(r/m) Sprocket speed | 鏈板線速度(m/s) Chains line speed | 電機功率(kw) Power of motor |
| GL80 | 4 | 20 | 0.29 | 4 |
| GL100 | 8 | 18 | 0.31 | 5.5 |
| GL150 | 16 | 15 | 0.31 | 7.5 |
| GL200 | 28 | 12 | 0.3 | 11 |
| GL250 | 48 | 10 | 0.3 | 15 |
| GL300 | 60 | 8 | 0.28 | 18.5 |
| GL400 | 80 | 8 | 0.28 | 22 |
四、管鏈輸(shū)送機的(de)應用
